Jasa Desain SitePlan Klaten & Jawa Tengah
Tepat Waktu
Kualitas Terjamin
Harga Transparan
Jasa Desain Siteplan Profesional di Klaten & Jawa Tengah
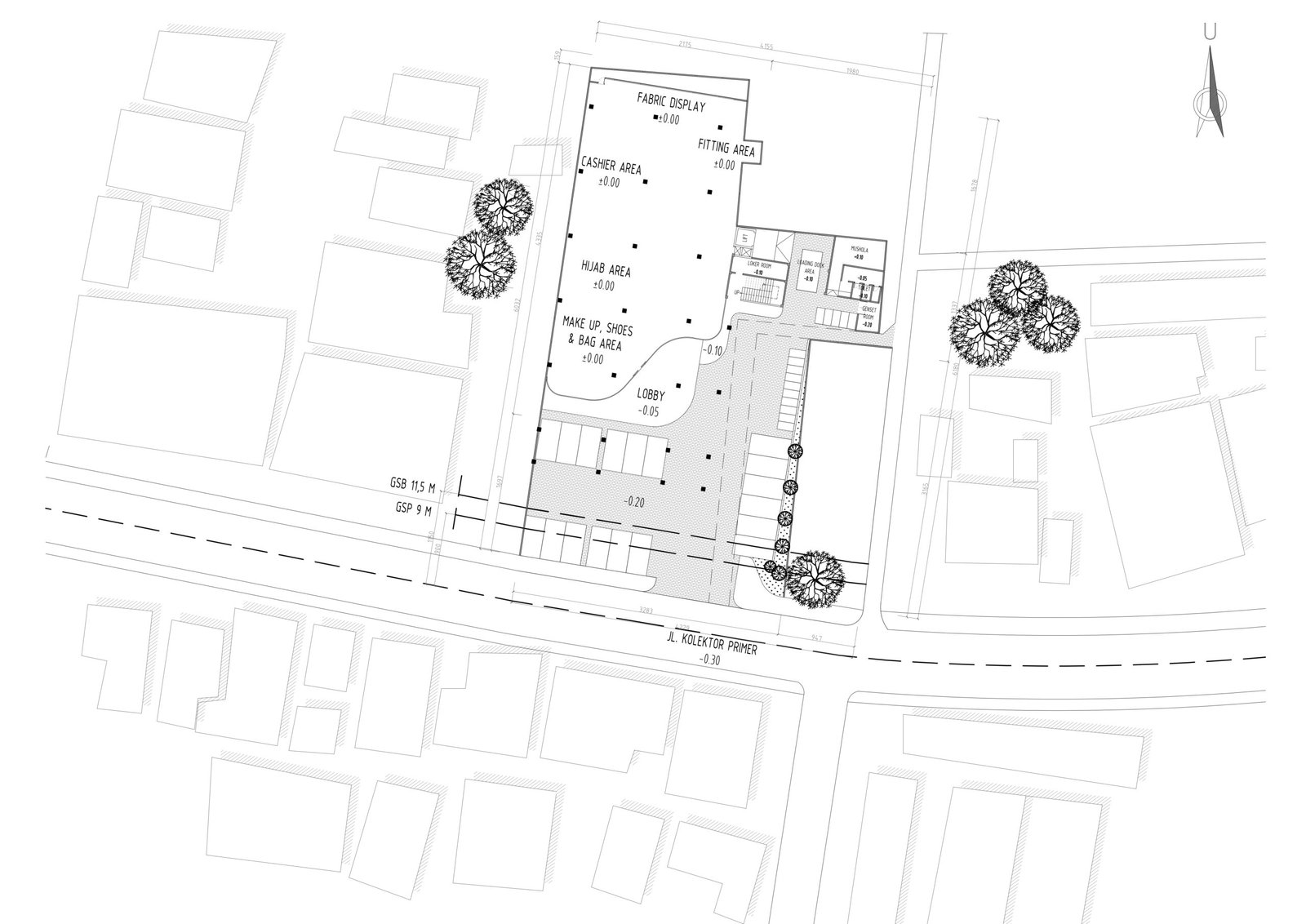
Dalam perencanaan pembangunan kawasan, desain siteplan memiliki peran penting sebagai penghubung antara konsep masterplan dan pelaksanaan di lapangan. Casanova Jaya Design menghadirkan layanan jasa desain siteplan profesional di Klaten & Jawa Tengah untuk membantu Anda menyusun tata letak bangunan, akses, sirkulasi, dan utilitas secara fungsional, efisien, serta siap direalisasikan.
Desain siteplan tidak hanya mengatur posisi bangunan, tetapi juga memastikan setiap elemen di dalam kawasan saling terintegrasi dengan baik, nyaman digunakan, serta sesuai dengan peraturan dan kondisi lingkungan sekitar.
Manfaat Menggunakan Jasa Desain Siteplan Profesional
Desain siteplan yang disusun secara profesional memberikan banyak manfaat strategis, antara lain:
Menata posisi bangunan agar optimal terhadap lahan
Mengatur sirkulasi kendaraan dan pejalan kaki secara aman dan efisien
Memaksimalkan fungsi ruang terbuka dan area hijau
Mempermudah perencanaan jaringan utilitas dan drainase
Mengurangi risiko perubahan layout saat pembangunan
Mendukung kelancaran proses perizinan
Meningkatkan kenyamanan dan nilai kawasan
Dengan siteplan yang matang, proses pembangunan akan berjalan lebih terarah, minim konflik antar fungsi, dan lebih efisien dari sisi biaya.
Lingkup Layanan Desain Siteplan yang Kami Tangani
Layanan desain siteplan dari Casanova Jaya Design mencakup berbagai jenis proyek, antara lain:
Siteplan perumahan dan kavling
Siteplan kawasan ruko dan pusat usaha
Siteplan gedung komersial dan perkantoran
Siteplan sekolah, kampus, dan fasilitas pendidikan
Siteplan rumah sakit dan fasilitas kesehatan
Siteplan kawasan wisata dan ruang terbuka publik
Setiap siteplan disesuaikan dengan luas lahan, fungsi kawasan, kebutuhan pengguna, serta potensi pengembangan ke depan.
Proses Kerja Desain Siteplan
Untuk menghasilkan siteplan yang benar-benar siap diterapkan di lapangan, kami menerapkan proses kerja yang terstruktur dan transparan:
1. Konsultasi & Penggalian Kebutuhan
Diskusi awal dilakukan untuk memahami tujuan proyek, fungsi kawasan, target pengguna, serta rencana pengembangan.
2. Survey Lokasi & Analisis Tapak
Kami melakukan pengukuran dan analisis kondisi lahan, kontur tanah, akses jalan, lingkungan sekitar, serta potensi kendala teknis.
3. Penyusunan Konsep Siteplan
Siteplan disusun meliputi tata letak bangunan, sistem sirkulasi, area parkir, ruang terbuka, jalur utilitas, dan drainase.
4. Penyesuaian & Finalisasi
Revisi dilakukan berdasarkan masukan klien hingga siteplan siap digunakan sebagai dasar perencanaan teknis dan perizinan.
Fungsi Strategis Desain Siteplan dalam Proyek
Desain siteplan memiliki fungsi penting dalam keberhasilan proyek, di antaranya:
Menjadi acuan utama penataan kawasan
Dasar penyusunan gambar kerja lanjutan
Pendukung utama dalam pengurusan perizinan
Alat komunikasi antar pihak dalam proyek
Pengendali arah pengembangan kawasan
Dengan siteplan yang tepat, proses konstruksi akan berjalan lebih sistematis, rapi, dan minim perubahan besar di tengah jalan.
Mengapa Memilih Casanova Jaya Design untuk Desain Siteplan?
Beberapa alasan mengapa layanan desain siteplan kami menjadi pilihan klien di Klaten & Jawa Tengah:
Berpengalaman menangani berbagai jenis kawasan
Perencanaan berbasis analisis teknis yang matang
Tata letak fungsional dan realistis untuk dibangun
Proses kerja terstruktur dan transparan
Komunikasi terbuka selama proses perencanaan
Revisi terarah sesuai kebutuhan proyek
Kami tidak hanya menyusun siteplan yang rapi secara visual, tetapi juga memastikan desain tersebut efektif untuk diterapkan di lapangan.
Desain Siteplan untuk Hunian, Bisnis, & Fasilitas Publik
Layanan desain siteplan sangat relevan untuk berbagai kebutuhan, seperti:
Pengembangan perumahan dan kavling
Kawasan ruko dan pusat perdagangan
Gedung perkantoran dan fasilitas komersial
Kawasan pendidikan dan fasilitas umum
Area wisata dan ruang publik
Dengan perencanaan siteplan yang baik, kawasan akan memiliki sirkulasi yang tertib, fungsi ruang yang optimal, dan daya tarik yang lebih tinggi.
Area Layanan
Layanan desain siteplan Casanova Jaya Design melayani proyek di wilayah Klaten & seluruh Jawa Tengah.
FAQ – Seputar Jasa Desain Siteplan
1. Apa itu desain siteplan?
Desain siteplan adalah perencanaan tata letak kawasan dalam satu lahan yang mencakup bangunan, sirkulasi, ruang terbuka, utilitas, dan akses.
2. Apa perbedaan siteplan dan masterplan?
Siteplan fokus pada satu kawasan atau satu tahap pembangunan, sedangkan masterplan bersifat lebih luas dan jangka panjang untuk keseluruhan kawasan.
3. Apakah siteplan diperlukan untuk perizinan?
Ya, dalam banyak proyek, siteplan menjadi salah satu dokumen penting dalam proses pengurusan perizinan.
4. Apakah desain siteplan bisa disesuaikan dengan kondisi lahan yang terbatas?
Bisa. Desain akan disesuaikan dengan luas lahan, kontur, dan kebutuhan fungsi agar tetap optimal.
5. Apakah desain siteplan bisa digunakan sebagai dasar gambar kerja?
Ya. Siteplan menjadi acuan utama dalam pengembangan gambar kerja teknis lanjutan.
6. Apakah Casanova Jaya Design juga menangani pembangunan kawasan?
Ya, kami dapat melanjutkan ke tahap konstruksi sesuai kebutuhan klien, namun layanan desain siteplan juga bisa digunakan secara terpisah.
Jasa Desain SitePlan Profesional di Klaten & Jawa Tengah
Casanova Jaya Design siap melayani kebutuhan Desain SitePlan di Klaten & Jawa Tengah dengan manajemen kerja yang rapi, tim profesional, serta standar mutu tinggi untuk memastikan setiap proyek berjalan tepat waktu dan memberikan hasil terbaik.
Lebih dari 150 proyek selesai
Tim profesional & berpengalaman
Berizin resmi & terpercaya
Mengerjakan proyek Desain SitePlan di seluruh Jawa Tengah & DIY
Proses Desain SitePlan Terstruktur & Transparan
Pelaksanaan Desain SitePlan kami mengikuti sistem kerja yang terukur dan transparan mulai dari konsultasi awal, penghitungan teknis, hingga pelaksanaan pekerjaan agar klien selalu mengetahui perkembangan pekerjaan di setiap tahap.
